Atlasimmobilier vous propose une opportunité rare : un terrain de près de 600 m² situé à quelques minutes de la place Jemaa el Fna, dans le centre historique de la médina. Il s’agit de trois parcelles regroupées — la majorité est titrée, le reliquat en cours de régularisation — déjà intégrées au permis de construire.
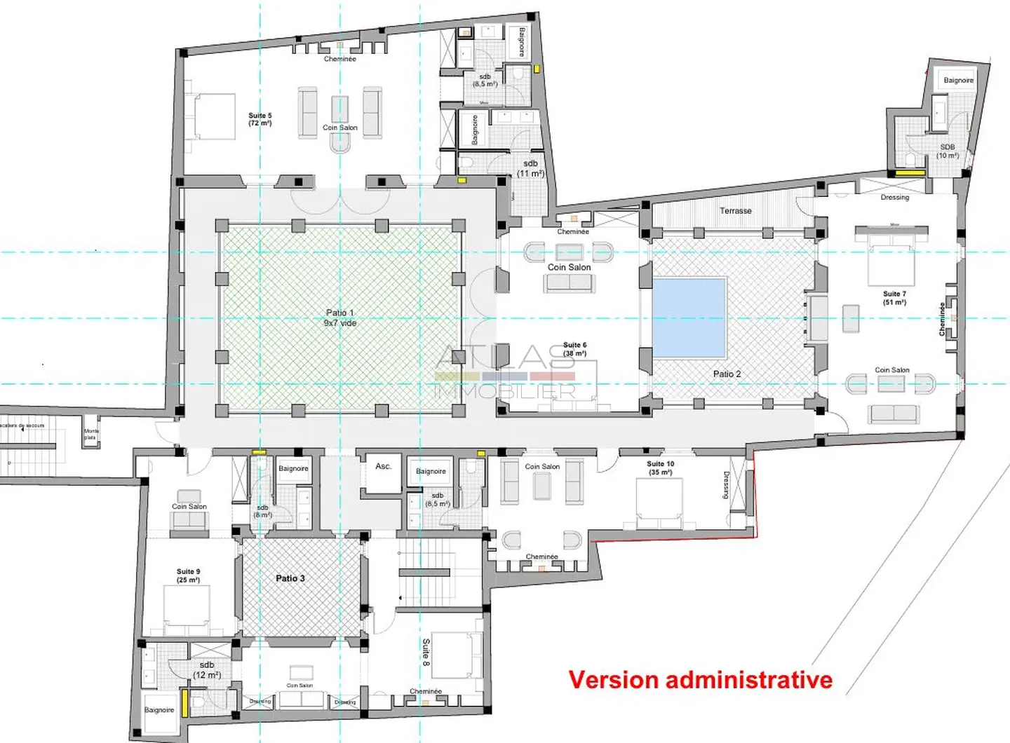
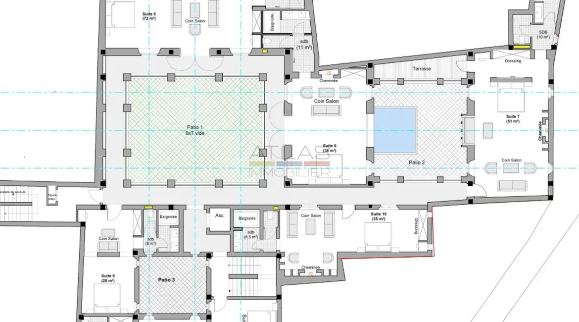
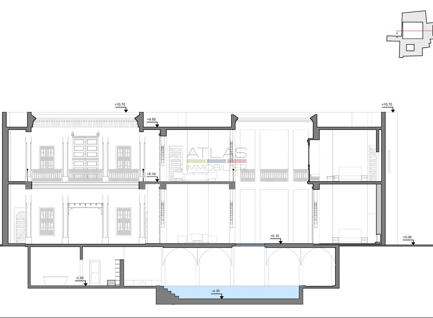
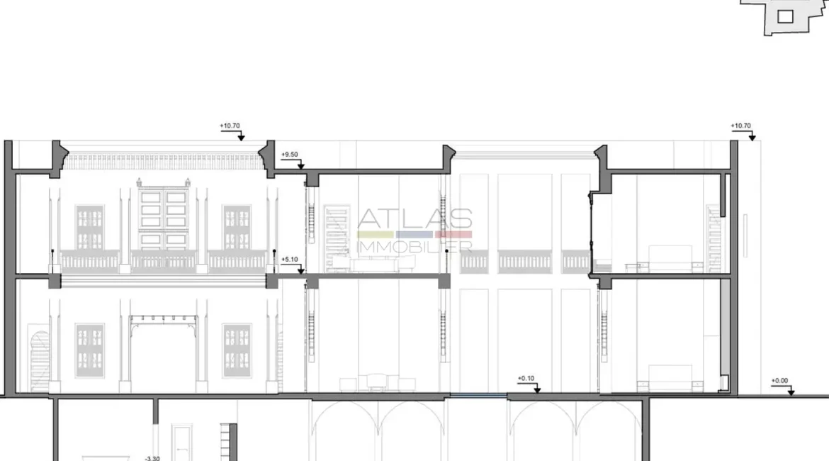
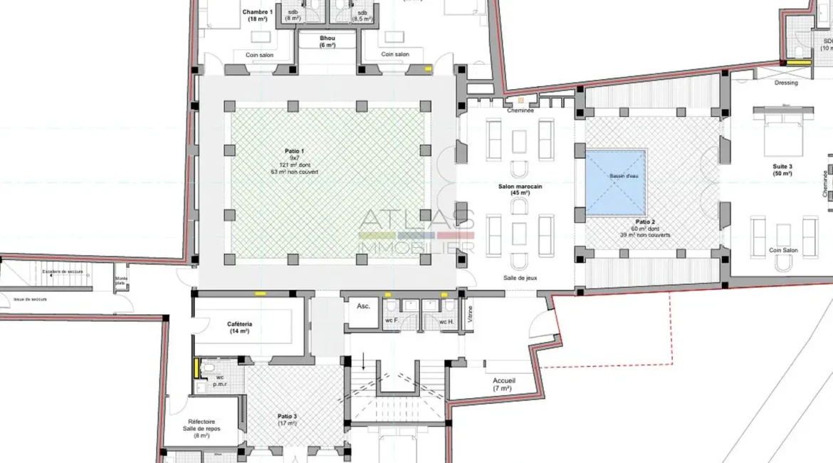
Ce terrain bénéficie d’un permis de construire délivré en 2024, autorisant la création d’un établissement de première catégorie : un riad de prestige articulé autour de trois patios de 120 m², 60 m² et 17 m².
Le projet prévoit 10 suites, dont la plus vaste développe 72 m², chacune avec salle de bain, toilettes, cheminée et dressing.
De nombreux espaces de vie et de services complètent l’ensemble : salons de réception, salle de jeux, salon marocain, réfectoire, cafétéria, lingerie, vestiaires, boutique, ascenseur…
L’architecture intègre trois bassins répartis sur trois niveaux :
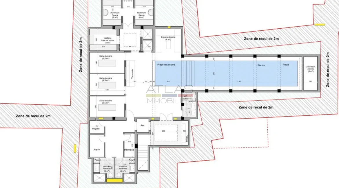
– Une grande piscine de 13 x 3 m au sous-sol,
– Un bassin dans le second patio au rez-de-chaussée,
– Et un bassin de nage sur la terrasse panoramique qui accueillera également un bar, un espace grillade et un solarium.
Le tout est déjà repris sur les plans autorisés – une configuration exceptionnelle.
La superficie habitable totale estimée à terme est d’environ 900 m², hors terrasse, dont près de 400 m² d’espaces communs (accueil, salons, restaurant, bien-être, services…).
Le tout est proposé à 900 000 euros, permis de construire inclus. Le devis des travaux reste à établir sur la base des plans autorisés. Le projet est conforme aux normes en vigueur, validé par l’architecte, et les autorisations sont déjà en place. Des ajustements restent possibles selon les souhaits de l’acquéreur.
