Vous rêvez de construire une villa à votre image, sans contraintes ni compromis ? Cette opportunité unique vous permet de concrétiser votre projet de vie dans un cadre privilégié. Situé au KM 10 de la route de l’Ourika à Marrakech, à seulement 1 km de la route menant vers The Source Marrakech, ce terrain nu titré offre un emplacement recherché et un potentiel exceptionnel.
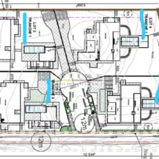
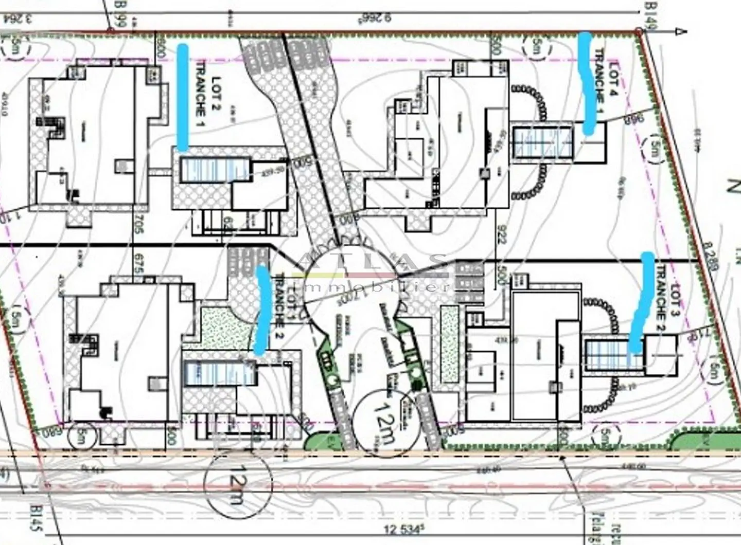
Avec une superficie de 1746 m² et un coefficient d’occupation du sol de 600 m², le terrain offre de vastes possibilités pour concevoir une architecture personnalisée. Situé en zone urbaine, il ne nécessite pas de VNA et reste accessible à tout acquéreur, garantissant une acquisition simple et sécurisée à proximité immédiate de Marrakech.
Ce terrain s’intègre dans un lotissement de standing comprenant quatre villas : une en finition, une en cours de construction et deux terrains nus, dont celui-ci. Les plans autorisés sont modifiables, avec la possibilité de construire en R+1, permettant d’optimiser l’espace habitable et de concevoir une villa sur mesure.
Déjà prêt à accueillir votre projet, le terrain dispose d’un puits autorisé et des raccordements aux services de distribution sont validés, ce qui facilite la mise en place des infrastructures essentielles. Proposé à 2 500 000 Dirhams, il constitue une opportunité rare d’investir dans un projet immobilier personnalisé au sein d’un secteur recherché et prisé de Marrakech.
Ne laissez pas passer cette chance exceptionnelle de bâtir la villa de vos rêves à Marrakech. Contactez-nous dès aujourd’hui pour organiser une visite privée.
