Idéalement situé sur le prestigieux circuit de la Palmeraie, ce terrain titré d’un hectare offre un emplacement unique face aux résidences emblématiques des Jardins de la Palmeraie. Niché dans un environnement résidentiel exclusif, verdoyant et parfaitement calme, il représente une opportunité rare pour réaliser une villa privée de prestige au cœur d’un des secteurs les plus prisés de Marrakech.
Grâce à son permis de construire en cours de validité, conforme aux règles d’urbanisme et au zonage S7D, ce terrain permet de lancer immédiatement la construction d’une villa contemporaine en R+1 avec sous-sol partiel, selon des plans déjà visés « ne varietur ».
Au cœur du circuit le plus recherché de la Palmeraie, ce terrain combine tranquillité et accessibilité. Il bénéficie d’un environnement naturel préservé tout en restant à proximité immédiate des commodités et du centre-ville. L’adresse conjugue harmonieusement cadre verdoyant, sécurité et prestige.
Le projet autorisé prévoit une villa contemporaine élégamment intégrée dans un paysage méditerranéen luxuriant. Les jardins sont imaginés comme un véritable parc privé, avec allées pavées, bassins d’agrément, oliviers centenaires, massifs fleuris et espaces ombragés dédiés à la détente.
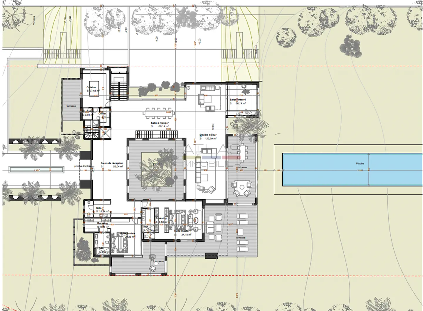
L’architecture intérieure se distingue par des volumes généreux : un vaste double séjour, un salon de réception, une salle à manger, une cuisine équipée, ainsi que plusieurs suites avec dressing et salle de bain. L’étage accueillera des suites avec terrasses privatives et vues dégagées sur les jardins et l’Atlas, tandis que le sous-sol abritera un espace bien-être complet — hammam, sauna, salle de massage, home cinéma, salle polyvalente et chambre de service — le tout relié par un ascenseur intérieur.
La propriété offrira une piscine avec plage aménagée, des terrasses panoramiques, un patio central avec fontaine, ainsi qu’un jardin potager et un verger. Chaque détail a été pensé pour créer un lieu de vie unique, à la fois luxueux et apaisant.
Ce terrain conjugue valeur patrimoniale, sécurité juridique et gain de temps grâce à son permis déjà obtenu. Il représente une opportunité exceptionnelle pour bâtir une villa de luxe dans un secteur emblématique de Marrakech, alliant prestige, confort moderne et nature préservée.
Contactez Atlasimmobilier pour plus d’informations ou pour organiser une visite. Notre agence met à votre service plus de 25 ans d’expertise locale sur Marrakech et Essaouira.
